Maison - vendu - 5620 Florennes

Vendu
5620 Florennes
Maison - vendu
139 m² 3 1 PEB : C
NOUVEAU PRIX...
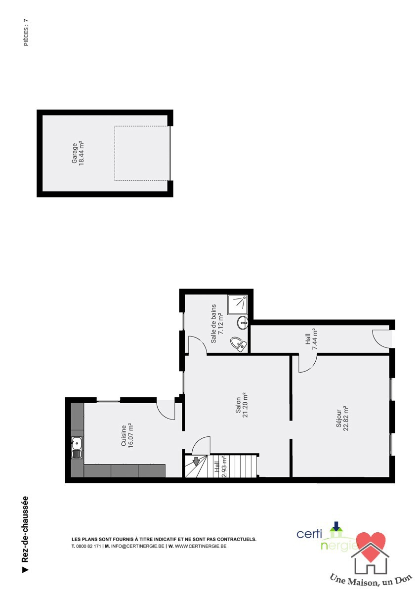
Agréable maison familiale composée au rez-de-chaussée d'un hall d'entrée (7,44 m²), une salle à manger (22,82 m²), un salon avec K7 bois (21,20 m²), une salle de douches (lavabo, meuble, wc, douche) (7,12 m²), une cuisine équipée (meubles, four, vitro, hotte, évier, lave-vaisselle) (16,07 m²). Au premier étage, un hall de nuit (11 m²) qui dessert sur 3 chambres (20,34 m² ; 14,62 m² et 15,82 m²) dont une avec wc séparé. Au second étage, un beau grand grenier aménageable de 53,20 m². Notons également une cave, une terrasse nouvellement carrelée avec tente solaire électrique, deux parkings et un garage une voiture avec nouvelle porte sectionnelle électrique.
Autres atouts de la maison : châssis pvc dv avec volets partiellement électriques, chauff centr mazout, chaudière récente et nv boiler, ancien carrelage ciment au rez-de-chaussée en très bon état, RC 641 €...
Belle occasion à saisir rapidement !
Offre non contractuelle.

Détails

Général

Référence 5531958
Catégorie Maison
Nombre de chambres 3
Nombre de salles de bain 1
Garage Oui
Terrasse Oui
Parking Oui
Surface habitable 139 m²
Surface du terrain 216 m²
Disponibilité à l'acte

Equipement de base

Cuisine Oui
Double vitrage Oui
Chauffage (Format/energie) mazout (chauf. centr.)
Sdb (Type) douche

En chiffres

Nbre de toilette(s) (nombre) 2
Chambre 1 (surface) 20.34 m²
Chambre 2 (surface) 14.62 m²
Chambre 3 (surface) 15.82 m²
Nbre de terrasse(s) (nombre) 1
Salle de séjour (surface) 21.2 m²
Salle à manger (surface) 22.82 m²
Cuisine (surface) 16.07 m²

Sécurité

Volets Oui
Détails volets (type) électrique

À proximité

Magasins (distance (m)) 650
Écoles (distance (m)) 700
Transports en commun (distance (m)) 1200
Centre sportif (distance (m)) 1500
Magasins Oui
Ecoles Oui
Transports en commun Oui
Centre sportif Oui

Divers

Hall d'entrée Oui
Type de grenier possibilité d'équiper
Grenier Oui
Cave Oui

Bâtiment

Année de rénovation 2016

Raccordements

Égouts Oui
Citerne à mazout Oui
Citerne à mazout (détails) 3x1200 litres

Équipements techniques

Châssis (Ouvertures) pvc

Energie

Label PEB (Classe) C
PEB E-SPEC (kwh/m²/an) (Consommation énergétique) 210
E total (Kwh/an) 52075
PEB code unique (-) 20230927021895

Documents

Prendre contact pour le bien : 5531958
* Champs obligatoires

En envoyant ma demande de contact, je déclare accepter que mes données complétées dans ce formulaire soient utilisées pour les buts mentionnés ci-dessus par Laurence - Une Maison, un Don ; et ce, en accord avec la charte de protection de la vie privée du site. Je peux à tout moment retirer mon consentement en introduisant une demande écrite à l’adresse immo@une-maison-un-don.be.

Préférences pour les cookies

La protection de vos données personnelles est importante pour nous. C’est pourquoi nous détaillons ci-dessous les différents services et fonctionnalités du site qui utilisent des cookies et nous vous laissons décider des cookies que vous souhaitez autoriser ou refuser.

Veuillez cependant noter que si vous bloquez certains types de cookies, cela pourrait impacter votre expérience de navigation sur notre site ainsi que les fonctionnalités disponibles.

Nous utilisons des cookies fonctionnels obligatoires pour assurer le bon fonctionnement du site. Ils sont, par exemple, nécessaires pour retrouver le résultat d’une recherche ou enregistrer le choix de la langue.

Certaines fonctionnalités, comme l’affichage de vidéos ou de cartes géographiques, sont assurées via des composants externes développés par des partenaires comme YouTube ou Google. Certains composants utilisent des cookies qui sont susceptibles de permettre à ces tiers de suivre le comportement des internautes afin, par exemple, de réaliser du ciblage publicitaire. L’activation de ces fonctionnalités et des cookies associés est donc soumis à votre consentement.